“第十五届中国国际室内设计双年展”以“设计中国·绿色中国·数字中国”为主题,旨在激发设计、艺术、技术、教育、服务的创新活力,推动行业的技术革命性突破、生产要素创新性配置、产业深度转型升级,催生新产业、新模式,培育发展新质生产力的新动能,助力实现设计中国、绿色中国、数字中国。
展览得到了全行业的高度关注和积极参与,通过申报、初选、初评,经林学明、杨冬江、杨邦胜、王传顺、李鹰等评委终评,入围名单已经产生,届时中国室内装饰协会将为获奖者颁发证书。
扫码查看主题展入围名单
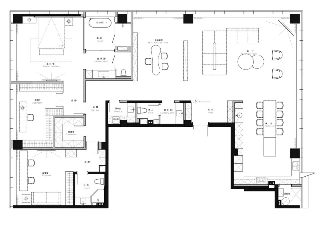
第十五届中国国际室内设计双年展主题展丨银奖
设计师:王高丰
设计机构:篙峰设计丨名门装饰
丨深邃之境
黑色是沉默的,却也是最有力量的。它包容着所有的色彩,同时也拥有无尽的可能。相较于浮夸的金、艳丽的红、高调的黄,一抹神秘深邃的黑灰色调,凝聚了时尚与前卫的双重属性,让空间更显高级,更具质感。本案设计师打破常规,以匠心独具的手法,打造出一处暗黑系的酷炫居所,呈现出意想不到的惊艳与震撼。
中国室内装饰协会秘书处
邮箱:cida1988@126.com
电话:010-88312032/52
地址:北京市西城区车公庄大街9号五栋大楼C-803室
